Ediții: 2023 | 2021 | 2018 | 2016 | 2014 | 2012

Casa “See You!”

Autori:
Alexandru Adam, Roger Pop
Colaboratori:
Colaboratori: arh. Mihai Geleletu, arh. Madalina Florea, arh Alexandra Ghiveci, Adrin Bratescu, Aylin Bagas, arh. Alma Bogheanu, arh Daniel Neamtu
Rezistenta: ing. Attila Barla (Eventus)
Instalatii: Piamex / NAPA
Constructor: Lehel Impex
Executanti/Furnizori: Ekero, Big Aluminium, Artelier, Rolservice, Sano
Foto: Cornel Lazia
Localizare:
România, jud. Mureş, Târgu Mureş, str. Bradului vezi harta
Indicatori:
RH: S+D+P+1e / Sd: 1020 m2 / Su: 696 m2 / POT: 19,05 / CUT: 0,39
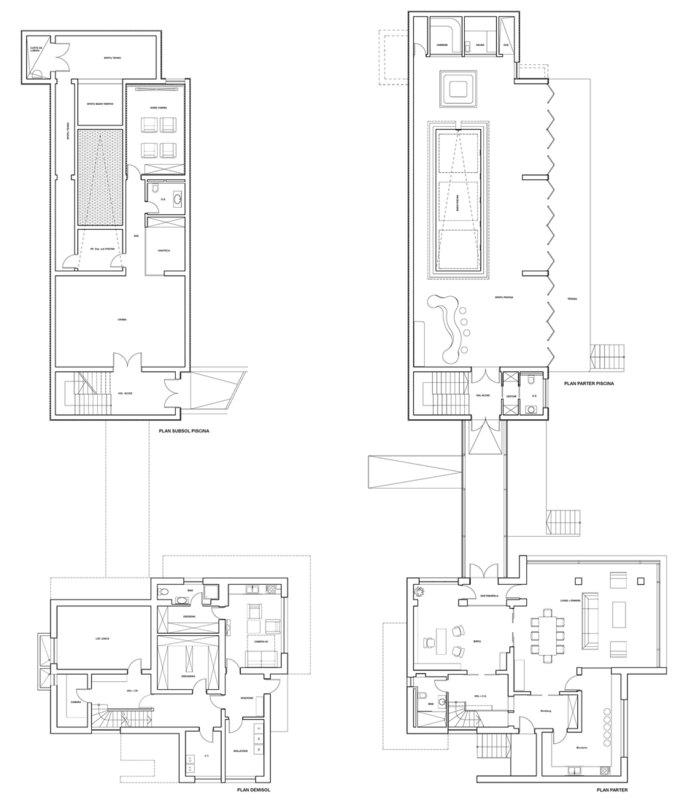
Terenul, in ceea ce priveste conformatia si amplasamentul, este aici cel putin la fel de important ca insasi casa, iar conditionarile reciproce au fost pentru noi de departe atuuri, nu impedimente. Declivitatea accentuata spre zona cu 'best view', diferenta de nivel de peste sase metri intre extreme, deschiderea generoasa la strada, insorirea si distanta suficienta pana la prima constructie pe directia liniei de panta, fac din teren amplasamentul aproape ideal, iar corpurile de constructii, urmeaza un demers firesc de pliere pe aceste caracteristici, atat volumetric cat si functional. Astfel avem corpul garajului incastrat in teren, legat de subsolul casei printr-un tunel subteran, accesul direct si fara trepte de la nivelul terenului in demisol, corpul piscinei pe aceeasi curba de nivel cu casa, legate printr-o pasarela suspendata. De asemenea, dispunerea spatiilor interioare si exterioare, raportul plin-gol in plan vertical la nivelul fatadelor si inclusiv mobilarea s-au facut dependent de acest context.
Volumetric si stilistic, constructiile, partial preiau din aerul vechii constructii a casei construite in perioada interbelica, partial fiind rezultatul acceptarii si asumarii provocarii plecate din insumarea dorintelor beneficiarului si a temei cu intrgul concept si cu insertul in tesut urban existent, la nivel de tipologie si de cromatica. Ansamblul este organizat in trei corpuri de constructii. Primul ca impact visual este casa care este dispusa pe doua niveluri supraterane, unul partial si unul subteran, nodul de legatura intre ele particularizandu-se prin faptul ca scarile sunt singurele elemente prin rampa dominanta care 'neaga' panta terenului. Functional, etajul superior e dedicat zonei de noapte, cu trei dormitoare de copii si cel matrimonial - deschis spre panorama; parterul - zona de zi cu living room, dinning, bucatarie si un birou-biblioteca; demisolul - o garsoniera independenta, zona de joaca a copiilor, depozitari si utilitati; subsolul - spatii tehnice si articulatia cu cel de-al treilea corp, anume al garajului. Al doilea doilea corp este cel al piscinei dispus pe doua niveluri, la cel suprateran, bazinul si sala piscinei cu zona SPA, la cel inferior, crama, vinoteca, home cinema si zona tehnica aferenta piscinei.
Particularitatile acestei lucrari, din punct de vedere tehnic sunt legate de consolidarea bucatii mentinute si de sapaturile si lucrarile sub aceasta, de consolele si deschideri, de realizarea treptelor si luminatoarelor piscinei, de solutiile si realizarea articularii corpurilor si de gestionarea energiei respectiv solutiile si realizarea sistemelor alternative de producere si stocare a acesteia ; din punct de vedere estetic , ‘jocul’ volumelor si alternanta non-culorilor, ‘dialogul’ si caracteristicile materialelelor folosite atat in interiorul si la exteriorul constructiilor si suprafefele mari vitrarate atat in plan vertical cat si orizontal.
Proiectul a fost facut in anii 2006-2007, lucrarile au inceput in 2008 si s-au finalizat in 2011.

Panou pentru expoziție

Click pe panou pentru a-l vedea la mărimea orginală (se va deschide într-o fereastră nouă)