Ediții: 2023 | 2021 | 2018 | 2016 | 2014 | 2012

Casă din Odorheiu Secuiesc

Autori:
Gábor Tóthfalusi, László Tulogdy
Colaboratori:
colaborator- arh SZŐCS István- Tektum
structuri: ing. NAGY Zsolt
constructor: ing. NAGY Zsolt
Beneficiar:
privat/private
Localizare:
România, jud. Harghita, Odorheiu Secuiesc, str. Biró Lajos nr. 5 vezi harta
Indicatori:
RH: P+E / Sd: 244,40 m2 / Su: 180,14 m2 / POT: 36% / CUT: 0,6
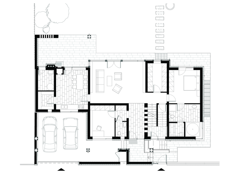
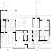
Imobilul este situat într-o stradă liniştită din Odorheiu Secuiesc. Zona este dominată de case familiale cu regim de înălţime preponderent parter. Terenul are o amplasare privilegiată de colţ. Conceptul volumetric a fost preluarea regimului de înălţime parter al caselor adiacente şi marcarea colţului cu un accent: donjon.
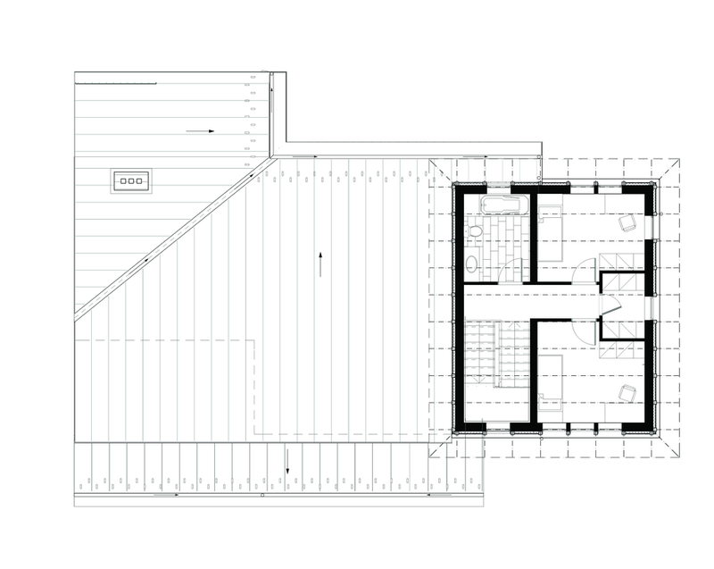
Planimetric casa are o dezvoltare liniară dat fiind suprafaţa terenului relativ redusă şi dorinţa de a obţine un paravan de protecţie al curţii înspre stradă. Funcţional rezolvarea este clasică. În zona parter am introdus livingul, bucătăria, un spaţiu birou, dormitor matrimonial, băi, spaţiile adiacente, iar în zona donjonului contemporan spaţiile de dormitoare pentru copii. Livingul şi bucătăria cu orientare sudică au acces direct spre grădină. Bucătăria este prelungită cu o mică terasă acoperită.
Structural clădirea este din zidărie de cărămidă, şarpantă de lemn, învelitoare în tablă plană fălţuită.
Datorită unui buget relativ redus şi al unei dorinţe de a obţine o clădire sustenabilă, prin proiect s-a urmărit folosirea materialelor naturale, reciclabile şi al sistemului de incălzire pe lemne.
Din punct de vedere estetic pentru faţada de la stradă s-a optat pentru o zidărie de cărămidă aparentă refolosită din demolări. Astfel clădirea dinspre stradă are un aspect sobru, sever. Registrul superior are o anvelopă din lemn, care oferă un ritm faţadei. În zona turnului, volumul etajului este separat de cea de la parter printr-un brâu marcant din beton aparent care urmăreşte linia faţadei. Brâul prin trepte succesive leagă organic în partea sudică, înspre grădină registrul etajului cu zona de parter al livingului. Faţada din curte se continuă tot cu o textură de lemn care îi oferă căldură şi intimitate zonei.
Dezvoltarea liniară al compozţiei este ruptă de mici jocuri ale faţadei şi prin realizarea unor copertine, console accentuate.

Panouri pentru expoziție

Click pe panouri pentru a le vedea la mărimea orginală (se vor deschide într-o fereastră nouă)