Ediții: 2023 | 2021 | 2018 | 2016 | 2014 | 2012

Imobil birouri şi locuinţe S+P+2E str. Duzilor, Bucureşti

Autor:
Cristina Olga Gociman
Colaboratori:
ARHITECTURA: arh. Claudiu Hogea / arh. Octavia Popeea
STRUCTURI: ing. Barbu Gociman / ing. Florin Voica
INSTALATII GAZE: ing. Marcela Serbanescu
INSTALATII TERMICE/VENTILATII: ing H. Cretu / ing. M. Zamfir
INSTALATII SANITARE: dr.ing. Dumitru Enache
INSTALATII ELECTRICE: ing. Bogdan Cristi Ionescu
Beneficiar:
Criba Grup
Localizare:
România, Bucureşti, str. Duzilor nr. 2
Indicatori:
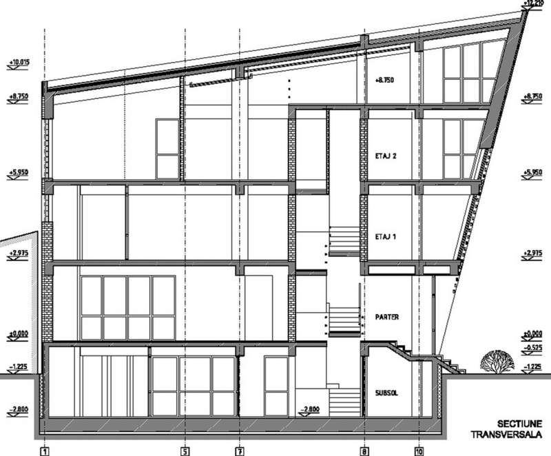
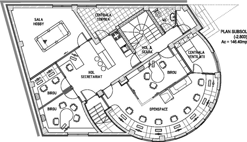
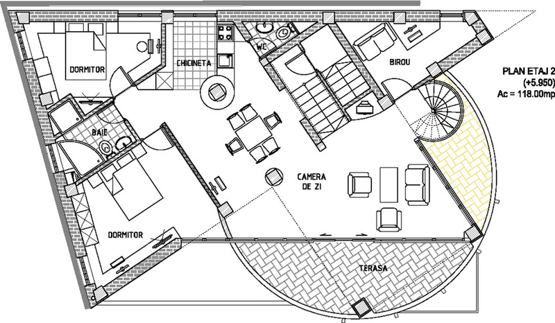
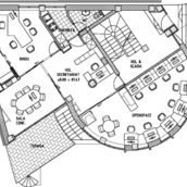
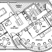
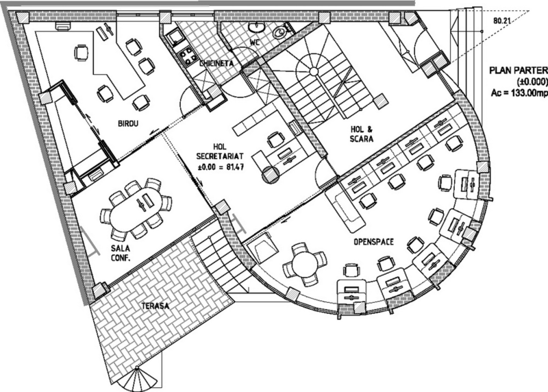
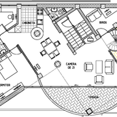
RH: S+P+2E / Sd: 556 m2 / Su: 450 m2
La imobilul de apartamente si birouri din strada Duzilor am fost în tripla postura de proiectanti, constructori si beneficiari. Acest fapt a permis beneficiarului sa mediteze mereu asupra temei, arhitectului, sa reproiecteze si constructorului sa modifice, fara sa se supere unul pe celalalt.
Proiectul, ca si casa, au crescut încet. Un an proiectul, un an autorizarea, doi ani structura, un an închiderile, un an instalatiile si poate înca un an finisajele. S-a ridicat o scara, apoi s-a darâmat, s-au facut ziduri care au cazut, s-au modificat ferestre, usi si totul a evoluat, ca un copil pe care-l cresti si nu stii cum se va dezvolta si daca va deveni o ilustrare a aspiratiilor tale.
Asa a crescut încet imobilul-copil „bine educat”, cu cei sapte ani de acasa.
O cladire care „comenteaza” contextul, adresându-i întrebari deloc comode. Raspunsul arhitectei este de a construi o piata din planul secund, de a puncta vertical un tesut urban care mai traieste, azi, numai din amintiri. De remarcat consecventa cu care colajul materiilor (beton, piatra, metal) îl sustine/dubleaza pe cel al formelor (prisma, triunghi, cilindru). Rezultatul: un joc provocator al formelor, un volum monumental si frânt care sparge violent o vecinatate poate prea asezata si pe care, pentru moment, o domina.
O arhitectura a întrebarii.

Panouri pentru expoziție

Click pe panouri pentru a le vedea la mărimea orginală (se vor deschide într-o fereastră nouă)