Ediții: 2023 | 2021 | 2018 | 2016 | 2014 | 2012

Locuinţă unifamilială, Snagov

Autori:
Vlad Popescu, Melania Dulămea
Colaboratori:
Structura: ing. Andrei Cristian (Rendart Grafic SRL)
Localizare:
România, jud. Ilfov, Snagov, Şoseaua Snagov, nr.cad. 472/2, parcela 126
Indicatori:
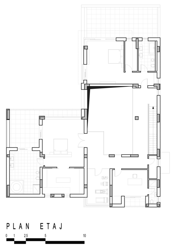
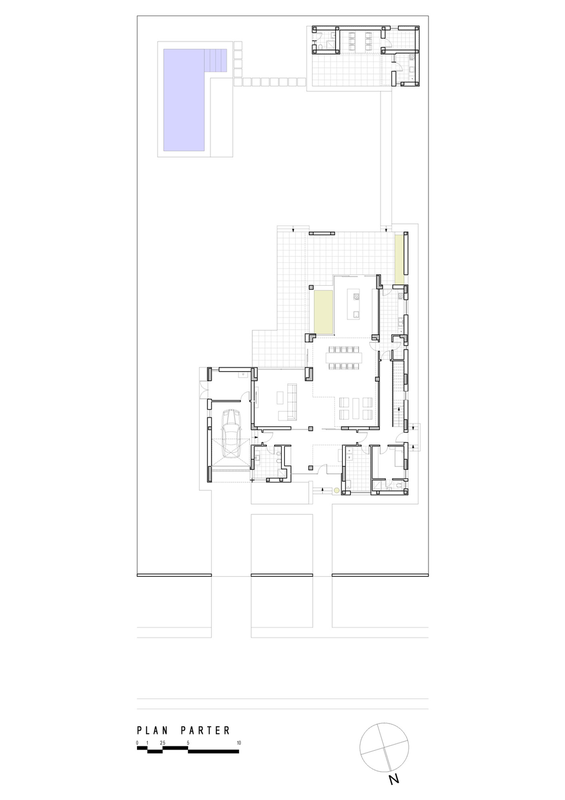
RH: P+1 / Sd: 647.60 m2 / Su: 411.50 m2 / POT: 24.16 / CUT: 0.43
Amplasamentul este în comuna Snagov pe un teren generos (1550 mp) având orientarea nord-est către drumul de acces şi către pădure. Contextul construit oferă o densitate scăzută dar o tendinţă către noi dezvoltări imobiliare variind de la locuinţe mici, cu aspect aproape rural, la construcţii rezidenţiale cu o vădită dorinţă de reprezentativitate, ansamblul neavând un caracter arhitectural explicit.
Proximitatea pădurii oferă un microclimat plăcut de aceea amenajarea exterioară a grădinii, atât din punctul de vedere a diferitelor activităţi care se desfăşoară acolo, a diferenţierii plantaţiei cât şi a relaţiei dintre spaţile interioare şi aceasta, favorizate de orientarea sud favorabilă, a fost definitorie în conturarea soluţiei. Relaţia vizuală directă dintre spaţiul interior al locuinţei şi pădure este restrânsă la nivelul parterului datorită orientării nord şi a prezenţei drumului de acces. Locuinţa a fost gândită ca reşedinţă permanentă a unui cuplu matur având o viaţă socială activă, de aceea s-a dorit o imagine elegantă conturată prin calitatea materialelor utilizate.

Panouri pentru expoziție

Click pe panouri pentru a le vedea la mărimea orginală (se vor deschide într-o fereastră nouă)