Ediții: 2023 | 2021 | 2018 | 2016 | 2014 | 2012

Casa H

Autori:
Gábor Tóthfalusi, László Tulogdy
Colaboratori:
colaborat: arh. BÁLINT Ágnes- Tektum
structură: ing. Mihai OLTEAN, ing. Adrian TUTAŞ
instalaţii: ing. MARIAN Aurelian, ing. Paul BIRIŞ
Beneficiar:
privat/private
Localizare:
România, jud. Cluj, Cluj-Napoca, str. Milcov nr. 18 vezi harta
Indicatori:
RH: P+E / Sd: 224 m2 / Su: 162 m2 / POT: 35% / CUT: 0.6
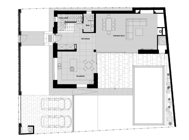
Situat în cartierul Grigorescu din Cluj-Napoca, proiectul are ca temă extinderea şi etajarea unei clădiri parter, concepută pentru acomodarea unei familii cu doi copii. Structura existentă, in formă L, era poziţionată pe limita de proprietate vest având o latură perpendiculară pe stradă. Această configuraţie a fost preluată şi în cazul volumului nou parter-etaj deoarece permitea o ierarhizare între zonele de acces dinspre stradă şi curtea interioară. Soluţia adoptată prezintă ocuparea optimă a parcelei din punct de vedere al relaţiilor fată de vecinătăţi.
Structura clădirii este concepută în cadre din beton armat, pereţii existenţi fiind preluaţi doar ca şi inchideri. Şarpanta este din lemn, parţial aparentă cu învelitoare tablă de zinc.
Parterul cuprinde spaţiul principal de locuit, fără compartimentări, doar zonificări alveolare. Camera de zi, locul de luat masa şi bucătăria au deschideri vitrate mari spre tarasă. Etajul este rezervat dormitoarelor şi băilor aferente.
Faţadele sunt finisate cu căramidă manuală în două culori (maro închis şi crem) combinate cu placări din pin termotratat. Deasemenea, elementele structurale ale şarpantei sunt vizibile si colorate in nuanţa placării.
Volumul spre stradă este caracterizat prin opacitate si masivitate, dar ierahizat - se diluează prin deschidere de goluri succesive dinspre planul gardului la stradă spre parter şi registrul etajului, unde raportul plin- gol este invers proporţional. Această tratare diferenţiată derivă din dorinţa de a creea spaţii intime şi ferite de ochii trecătorilor la nivelul parterului şi deschideri de goluri mari la etaj, de unde perspectivele sunt interesante.
Dacă imaginea spre spaţiul public este tratată sobru prin aplicarea cărămizii, zona curţii interioare, a terasei este considarată zona caldă, familială unde lemnul este preponderent. Majoritatea spaţiilor interioare de la etaj si parter sunt orientate spre aceasta.

Panouri pentru expoziție

Click pe panouri pentru a le vedea la mărimea orginală (se vor deschide într-o fereastră nouă)